Productos
Fabricacion de Tableros Electricos, montaje e equipamiento para Subestaciones de media y Baja tension. Bancos de Condensadores,Variadores de Velocidad,Arrancadores Electronicos, etc .
Tableros de control, protección y medición. tableros de comunicaciones, tablero de regulación de transformadores, tablero de servicios auxiliares AC/DC.
Ver detalle
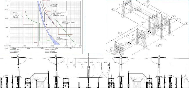
Proyectos Subestaciones Eléctricas
Poyectos eléctricos de Subestaciones de Potencia y sistemas eléctricos industriales y mineros.
Montaje pruebas y puesta en servicio de Transformadores de potencia, Interruptores, Seccionadores, Transformadores de tensión, Transformadores de corriente, Pararrayos, Trampas de Onda, Montaje de Estructuras metálicas y barraje.
Servicios Especializados
- Montaje electrico en Baja y Media Tension.
- Control y Automatizacion Industrial.
- Sistemas eléctricos industriales y mineros.
Estudios de Flujos de Potencia, Cortocircuito, Proteccion y Estabilidad de Sistemas Eléctricos.
Desarrollo de Ingeniería de Detalle de Sistemas de Protección y Control.
Pruebas de Relés de Protección y de Equipos de Alta y Media Tensión.
Ver detalle





